Автоматический угольный котел 0.6 МВт в Ленгере

Водогрейный котел на угле 0.6 МВт автоматический
Водогрейный автоматический котел на угле 0.6 МВт
Чертеж автоматического угольного котла 0.6 МВт
Автоматический угольный котел 0.6 МВт чертеж
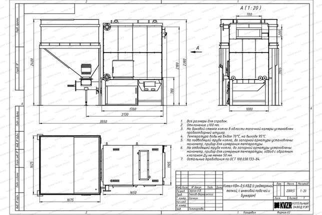
Чертеж автоматического котла на угле 0.6 МВт с бункером 2 м3
Чертеж автоматического угольного котла 0.6 МВт с бункером 2 м³
Угольный котел автоматический 0.6 МВт
Автоматический угольный котел 0.6 МВт
Автоматический промышленный угольный котел 0.6 МВт
Промышленный автоматический угольный котел 0.6 МВт
Котел угольный 0.6 МВт с автоматической подачей
Угольный котел 0.6 МВт с автоматической подачей
Производство автоматического угольного котла 0.6 МВт
Производство автоматических угольных котлов 0.6 МВт
Чертеж автоматического котла на угле 0.6 МВт с бункером 3 м3
Чертеж автоматического угольного котла 0.6 МВт с бункером 3 м³
Водогрейный котел на угле 0.6 МВт автоматический
Чертеж автоматического угольного котла 0.6 МВт
Чертеж автоматического котла на угле 0.6 МВт с бункером 2 м3
Угольный котел автоматический 0.6 МВт
Автоматический промышленный угольный котел 0.6 МВт
Котел угольный 0.6 МВт с автоматической подачей
Производство автоматического угольного котла 0.6 МВт
Чертеж автоматического котла на угле 0.6 МВт с бункером 3 м3
Цена
8 891 280 ₸
От 8 891 280 ₸ с доставкой до г.
  • Эффективно работает на каменном и буром угле
  • Размеры сжигаемых кусков топлива до 10 см
  • Работает без дымососа
  • Надежная автоматика промышленного исполнения
  • Штатное автоматическое золоудаление

Технические характеристики автоматического угольного котла 0.6 МВт

МаркаКотел КВа КБ 0.6 МВт
ВидВодогрейный
Тип отопительного котлаТвердотопливный
БрендHEATEXPERT
ТипКотел КВа КБ
Вид топкиРетортная, Автоматическая
Максимальная тепловая мощность0.6 МВт
Максимальная тепловая мощность600 кВт
Максимальная тепловая мощность0.52 Гкал
Диапазон регулирования мощности30-100 %
Диапазон регулирования мощности180-600 кВт
ТопливоТвердое, Уголь
Низшая теплота сгорания проектного топлива5230 кКал/кг
Влажность топлива30 %
Фракционный состав топлива УГОЛЬот 15 мм до 50 мм (семечко, мелкий, орех) допускается применение кусков до 100 мм 10%
КПД котла на УГЛЕ, не менее80 %
Расход УГЛЯ среднечасовой за отопительный сезон73 кг/ч
Расход УГЛЯ при максимальной нагрузке котла127 кг/ч
Расход условного топлива95 кг/ч
Срок автономной работы при минимальной нагрузке до1 суток
Срок автономной работы в среднем за отопительный сезон15 часов
Срок автономной работы при максимальной нагрузке котла9 часов
Минимальная температура воды на входе в котел55 °С
Максимальная температура воды на выходе из котла115 °С
Давление воды, не более0.15-0.3 (1.5-3) МПа (кгс/см²)
Номинальный расход теплоносителя21 м³/ч
Расход теплоносителя через котел min-max17-27 м³/ч
Гидравлическое сопротивление при номинальном расходене более 0.07 (0.7) МПа (кгс/см²)
Аэродинамическое сопротивление100 (10) Па (мм. вод. ст.)
Разряжение в топочной камере20-40 (2-4) Па (мм. вод. ст.)
Объем уходящих газов3300 м³/ч
Температура уходящих газов220 °С
ТягаУравновешенная
Водяной объем котла640 л
Объем топочной камеры0.58 м³
Объем бункера0.8 м³
Объем штатного бункера (насыпная плотность 1300 кг/м³)1040 кг
Размер топочной камеры, длина*ширина*высотаД 900х1410 мм
Присоединительные размеры по водяному тракту80 Ду
Присоединительные размеры газохода уходящих газов, ширина*высота / сечение600х200 / 0.12 мм/м²
Габаритные размеры блока, длина*ширина*высота1850х1400х1700 мм
Габаритные размеры котла, длина*ширина*высота2900х1400х2400 мм
Масса2800 кг
Конструкция котлаВодотрубная
Количество контуровОдноконтурный
РазмещениеНапольный
Тип камеры сгоранияОткрытый
УправлениеЭлектронное
Принцип работы твердотопливного котлаКлассический
ЭнергонезависимыйНет
Тип питанияТрехфазное
Встроенный циркуляционный насосНет
Встроенный расширительный бакНет
ЭнергоэффективностьВысокая
Отапливаемая площадьот 4700 до 6700 м²
Отапливаемый объемот 13900 до 19900 м³

Автоматический угольный котел 0.6 МВт для отопления в Ленгере

Угольный автоматический котел 0.6 МВт работает с естественной тягой, без дымососа, устанавливается в котельной для отопления больших помещений, коттеджей, загородных домов, складских, ремонтных баз, СТО, теплиц и офисных зданий площадью 860 – 1600 м2. Температура нагрева воды 115 °С, рабочее давление 0.1 – 0.3 МПа.

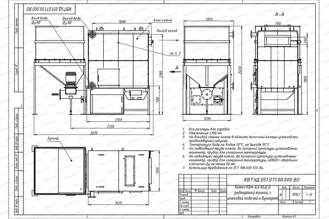
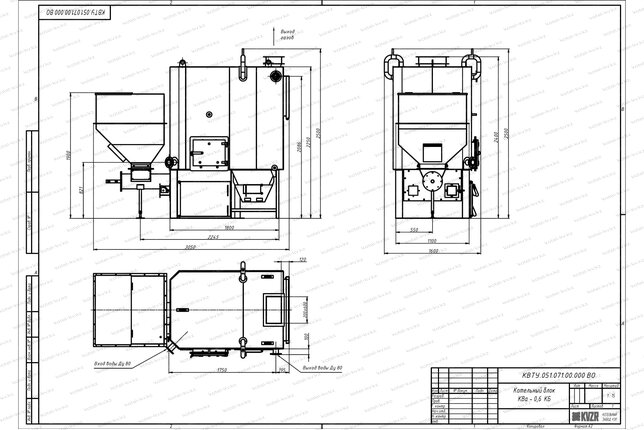
Бункер автоматического угольного котла

Российский автоматический твердотопливный котел 0.6 МВт способен длительное время работать без вашего участия. Автоматика позволяет настраивать и поддерживать комфортную температуру, дозируя подачу топлива, а GSM модуль полностью контролирует работу котла и оповещает вас о любых сбоях в работе.

Все обслуживание котлоагрегата сводится к добавлению угля в бункер один раз в 3 – 7 дней (в зависимости от погодных условий и требуемой температуры) и периодического очищения бункера шлака.

Стальные алтайские автоматические котлы отопления 0.6 МВт работают на каменном и буром угле размерами кусков от семечки до 100 мм. Использование как сортового, так и не сортового угля различных фракций, освобождают вас от предварительной подготовки топлива и сложностей с его поиском.

Емкий бункер

Водогрейный отопительный автоматический котел на угле 0.6 МВт изготавливается с бункером, вместительностью не менее 400 кг. Такого количества топлива хватает до 3 - 7 дней работы. Вам достаточно выставить нужную температуру в помещении и раз в неделю досыпать уголь в бункер. Конструкция бункера исключает зависание топлива. Устанавливается справа или слева от котлоагрегата.

Шнек с системой от заклинивания

Горелка ретортная угольного автоматического котла

Бункер оснащен шнеком с системой защиты от заклинивания. При заклинивании шнека из-за случайно попавшего угля более крупного размера, наш автоматический котел на твердом топливе 0.6 МВт включает обратный ход и затем снова подает топливо на реторту. Агрегат без функции реверсивного движения останавливает свою работу и без вашего вмешательства не возобновляет движение. Шнек производит подачу топлива прямо на ретортную горелку в камере сгорания.

Особенности топки

Ретортная горелка устанавливается в середине топочной камеры. Такая конструкция равномерно нагревает стенки автономного трубного котла, предотвращая перегрев и увеличивая путь к бункеру, снижая вероятность возгорания. Полная безопасность работы обеспечивается автономной системой пожаротушения, срабатывающей даже при сбоях с электроэнергией.

Теплообменник с максимальной теплоотдачей

Производственный котел 0,6 МВт с автоматической подачей угля – газоплотный, водотрубный. Вода поступает в трубы котельного блока, расположенные в шахматном порядке. Шахматное расположение позволяет максимально омывать поверхности нагрева и отдавать тепло теплоносителю. Расположение труб в шахматном порядке исключает забивание осаждения, снижает вероятность забивания трубных пучков конвективной части и обеспечивает компактность агрегата. Высокая скорость воды в трубах сдерживает процессы отложения накипи в поверхностях нагрева и исключает перегрев.

Автоматическое золоудаление

Золоудаление автоматического

Чтобы очистить шнековый твердотопливный угольный котел 0.6 МВт с автоматической подачей топлива не требуется его останавливать и самостоятельно выгребать золу. Встроенное автоматическое золоудаление сбрасывает образующиеся золу и шлак в специальный бункер-накопитель, находящийся рядом с котлом. Достаточно периодически его очищать.

Умная автоматика

Промышленный твердотопливный котел автомат для угля 0.6 МВт прост в обслуживании и управлении. Автоматика снимает с вас массу обязанностей и облегчает обслуживание - доставляет топливо из бункера в топку, регулирует подачу воздуха, поддерживает заданную температуру, управляет насосами, отвечает за безопасность. Для этого на щите устанавливаются необходимые настройки, которые можно тонко регулировать для более экономичного расхода топлива.

Монтаж и комплектация

Отечественный автоматический угольный котел 0,6 МВт поставляется блоками максимальной заводской готовности, цена включает - котельный блок, топку с ретортой, бункер с шнеком, вентилятор поддува, контейнер шлака, вентили, предохранительные клапаны, термометры, манометры, трехходовые краны, паспорт и инструкцию по эксплуатации. Агрегат собирается в котельной на специально подготовленную ровную поверхность и закрепляется анкерными болтами. Далее подсоединяется по воде, устанавливается запорная арматура на подводящем и отводящем трубопроводе, устанавливаются предохранительные клапаны, дренажи, воздушники и контрольно измерительные приборы. В воздушный короб по месту врезается вентилятор, монтируется газоход.

Купить автоматический угольный котел 0.6 МВт

Для того, что бы купить угольный котел 0.6 МВт с автоматической подачей в Ленгере вы можете сделать заявку по телефону +7-7172-69-59-73, либо оформить заявку онлайн. Менеджеры дадут консультацию по подбору вспомогательного оборудования для выбранных вами моделей и рассчитают стоимость доставки. Транспортирование котлоагрегата и вспомогательного оборудования до объекта осуществляется автомобильным транспортом.

Комплект поставки автоматического угольного котла 0.6 МВт

Вентилятор
Вентилятор 2 с дв. 1,5/3000
1 штука
Ретортная горелка угольная
Горелка ретортная угольная
1 штука
Бункер котла на угле автоматического
Бункер автоматического котла на угле
1 штука
Контейнер для шлака
Контейнер шлака
1 штука
Затвор Ду 80
Затвор Ду 80
2 штуки
Клапан предохранительный Ду 40
Клапан Ду 40
1 штука
Клапан обратный
Клапан обратный
1 штука
Манометр МП 160
Манометр МП 160
2 штуки
Кран трехходовой ДУ 15
Кран Ду 15
2 штуки
Термометр ТТЖО
Термометр ТТЖО
2 штуки
Оправа термометра ОПТ
Оправа ОПТ
2 штуки
Вентиль Ду 15
Вентиль Ду 15
2 штуки
Вентиль Ду 20
Вентиль Ду 20
2 штуки

Вспомогательное оборудование для работы автоматического угольного котла 0.6 МВт

Насос К консольный
К 65-50-160а
Цена 388 596 тг.
Насос К консольный
К 50-32-125
Цена 283 656 тг.
Насос TD
Насос TD40-36G2 (5.5 кВт)
Цена 1 225 572 тг.
Насос CHL
Насос CHL2-40 (0.55 кВт)
Цена 368 880 тг.
Дымосос ДН 3.5
Цена 355 524 тг.

Аналоги автоматического угольного котла 0.6 МВт

Котел КВр-0.6 К
Котел КВр 0.6 МВт
Вид топкиРучная, Колосники
Максимальная тепловая мощность, МВт0.6
ТопливоТвердое, Уголь
Отапливаемая площадь, м²от 4700 до 6700
Цена 3 930 480 тг.
Котел 0.6 МВт с топкой ОУР
Котел 0.6 с ОУР
Вид топкиРучная, ОУР
Максимальная тепловая мощность, МВт0.6
ТопливоТвердое, Уголь
Отапливаемая площадь, м²от 4700 до 6700
Цена 3 847 800 тг.
На опилках котел 0.6 МВт
Котел на опилках 0.6 МВт
Вид топкиВихревая, Автоматическая
Максимальная тепловая мощность, МВт0.6
ТопливоТвердое, Опилки
Отапливаемая площадь, м²от 4700 до 6700
Цена 11 403 480 тг.
На древесных отходах котел 0.6 МВт
Котел на древесных отходах 0.6 МВт
Вид топкиРучная, Подовая
Максимальная тепловая мощность, МВт0.6
ТопливоТвердое, Дрова, Древесные отходы естественной влажности
Отапливаемая площадь, м²от 4700 до 6700
Цена 4 598 280 тг.
Угольный котел автоматический 0.4 МВт
Автоматический угольный котел 0.4 МВт
Вид топкиРетортная, Автоматическая
Максимальная тепловая мощность, МВт0.4
ТопливоТвердое, Уголь
Отапливаемая площадь, м²от 3000 до 4300
Цена 7 860 960 тг.
Автоматический промышленный угольный котел 0.5 МВт
Автоматический угольный котел 0.5 МВт
Вид топкиРетортная, Автоматическая
Максимальная тепловая мощность, МВт0.5
ТопливоТвердое, Уголь
Отапливаемая площадь, м²от 3900 до 5500
Цена 8 369 760 тг.

Сертификат и качество автоматического угольного котла 0.6 МВт

Сертификат на водогрейные котлы на твердом и жидком топливе
Сертификат на водогрейные котлы на твердом топливе

Собственное производство

Котельный завод производит
  • Паровые котлы от 300 кг до 2.5 тонны пара в час
  • Промышленные водогрейные котлы от 150 КВт до 4 МВт на всех видах топлива
  • Механические топки ТШПМ, шурующая планка и ТЛПХ, ленточное полотно прямого хода
  • Циклоны для очистки воздуха и дымовых газов для производств и промышленных отраслей
  • Транспортеры и системы топливоподачи и шлакоудаления
Подробнее о производстве
Собственное производство
Смотреть видео
с производства