Котел 150 кВт угольный в Ленгере

Угольный котел 150 кВт
Котел 150 кВт угольный
Котел 150 кВт угольный с колосниками чертеж
Котел 150 кВт угольный чертеж
Угольный котел 150 кВт водогрейный
Водогрейный угольный котел 150 кВт
Котел 150 кВт угольный промышленный
Промышленный котел 150 кВт угольный
Угольный котел 150 кВт - изготовление
Изготовление угольного котла 150 кВт
Угольные котлы 150 кВт - производство
Производство угольных котлов 150 кВт
Котел 150 кВт - обшивка потолочной части
Обшивка потолочной части котла 150 кВт
Угольный котел 150 кВт - люк для очистки конвективной части
Люк для очистки конвективной части угольного котла 150 кВт
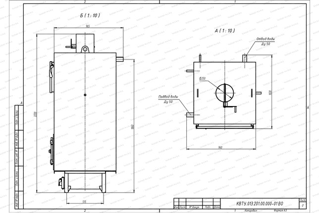
Чертеж котла 150 кВт угольного с колосниками
Чертеж котла 150 кВт угольного
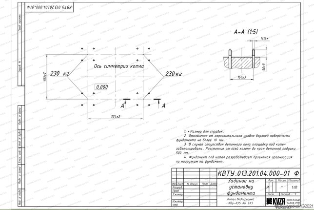
Чертеж изготовления фундамента котла 150 кВт угольного с колосниками
Чертеж фундамента котла 150 кВт на угле
Угольный котел 150 кВт
Котел 150 кВт угольный с колосниками чертеж
Угольный котел 150 кВт водогрейный
Котел 150 кВт угольный промышленный
Угольный котел 150 кВт - изготовление
Угольные котлы 150 кВт - производство
Котел 150 кВт - обшивка потолочной части
Угольный котел 150 кВт - люк для очистки конвективной части
Чертеж котла 150 кВт угольного с колосниками
Чертеж изготовления фундамента котла 150 кВт угольного с колосниками
Цена
2 156 040 ₸
От 2 156 040 ₸ с доставкой до г.
Логотип WhatsApp Связаться
по WhatsApp
  • Компактная вертикальная модель для маленьких котельных
  • Работает на естественной тяге, дымосос и вентилятор не требуются
  • Широкий диапазон рабочего давления от 0.1 до 0.3 МПа
  • Изготовление из трубы сталь 10-20 высокого качества
  • Возможна установка дымовой трубы на каркас котла

Технические характеристики

МаркаКотел 150 кВт угольный
ВидВодогрейный
Тип отопительного котлаТвердотопливный
БрендHEATEXPERT
ТипКотел КВр
Вид топкиРучная, Колосники
Максимальная тепловая мощность0.15 МВт
Максимальная тепловая мощность150 кВт
Максимальная тепловая мощность0.13 Гкал
Диапазон регулирования мощности50-100 %
Диапазон регулирования мощности75-150 кВт
ТопливоТвердое, Уголь
Низшая теплота сгорания проектного топлива5230 кКал/кг
Влажность топлива30 %
Фракционный состав топлива УГОЛЬСодержание мелочи (0-6 мм) не более 50%; максимальный размер куска не более 100 мм
КПД котла на УГЛЕ, не менее80 %
Расход УГЛЯ среднечасовой за отопительный сезон18 кг/ч
Расход УГЛЯ при максимальной нагрузке котла32 кг/ч
Расход условного топлива24 кг/ч
Минимальная температура воды на входе в котел55 °С
Максимальная температура воды на выходе из котла115 °С
Давление воды, не более0.15-0.3 (1.5-3) МПа (кгс/см²)
Номинальный расход теплоносителя5 м³/ч
Расход теплоносителя через котел min-max4-7 м³/ч
Гидравлическое сопротивление при номинальном расходене более 0.07 (0.7) МПа (кгс/см²)
Аэродинамическое сопротивление15 (1.5) Па (мм. вод. ст.)
Разряжение в топочной камере20-40 (2-4) Па (мм. вод. ст.)
Объем уходящих газов630 м³/ч
Температура уходящих газов250 °С
ТягаЕстественная
Водяной объем котла97 л
Объем топочной камеры0.46 м³
Размер топочной камеры, длина*ширина*высота690х690х965 мм
Присоединительные размеры по водяному тракту50 Ду
Присоединительные размеры газохода уходящих газов, ширина*высота / сечениеДу 250 / 0.05 мм/м²
Габаритные размеры блока, длина*ширина*высота1050х960х1850 мм
Габаритные размеры котла, длина*ширина*высота1050х960х2120 мм
Масса1000 кг
Конструкция котлаВодотрубная
Количество контуровОдноконтурный
РазмещениеНапольный
Тип камеры сгоранияОткрытый
УправлениеЭлектронное
Принцип работы твердотопливного котлаКлассический
ЭнергонезависимыйНет
Тип питанияТрехфазное
Встроенный циркуляционный насосНет
Встроенный расширительный бакНет
Отапливаемая площадьот 860 до 1600 м²
Отапливаемый объемот 2600 до 5000 м³
ЭнергоэффективностьВысокая
Размеры корпуса котла, длина*ширина*высота мм

Котел 150 кВт угольный в Ленгере

Промышленный угольный котел мощностью 150 кВт – современный, компактный, вертикального расположения, с ручной загрузкой топлива и естественной тягой, предназначен для отопления и горячего водоснабжения бытовых зданий и промышленных котельных.

Водогрейный котел 150 кВт на угле имеет следующие технические характеристики:

  • мощность – 0.15 МВт, 150 кВт, 0,13 Гкал;
  • топливо - каменный и бурый уголь;
  • температура - до 115 °С;
  • давление - 0.1 – 0.3 МПа.

Котел 150 кВт на угле устройство

Стальной отопительный котел 150 кВт угольный состоит из топочной и конвективной частей, расположенных вертикально.

Топочная часть. Камера горения изготовлена из стальных водозаполненных панелей для исключения перегрева конструкции. Топка выполнена в газоплотном исполнении. Газоплотность исключает присосы холодного воздуха в топочную часть и выход дымовых газов в котельный зал.

Чугунные колосники укладываются в топку и образуют колосниковую решетку, необходимую для поддержания слоя топлива. Колосники имеют щелевидные отверстия, которые снизу расширяются. Отверстия необходимы для провала золы и шлака в зольник и подвода воздуха на горение. Расход воздуха регулируется шибером.

Конвективная часть. Конвективная поверхность нагрева выполнена из параллельно установленных в шахматном порядке труб. Шахматное расположение способствует более полному омыванию труб горячими газами.

Развитая конвективная часть снижает температуру уходящих газов на выходе из теплоагрегата до 200-180 °С. Горячие газы, проходя плотную конвективную ступень, максимально отдают тепло теплоносителю, позволяя экономить на топливе. Очистка поверхностей нагрева проводится через люки в обшивке.

Множественные перегородки увеличивают скорость потока воды в трубной системе водонагревательного котла. Это исключает застойные зоны и перегрев поверхностей нагрева. Для выпуска воздуха при заполнении котла водой в верхней части агрегата установлен штуцер с вентилем.

Для продувки и дренажа в нижней части котла установлен дренажный штуцер с вентилем. Стационарный нагревательный котел 0.15 МВт изготавливается со съемной, облегченной теплоизоляцией из плит ПТЭ. Обшивка производится из стальных листов.

Принцип работы угольных котлов 150 кВт

Уголь в водогрейный колосниковый котел 150 кВт на угле укладывается через чугунную дверку, расположенную на фронте теплогенератора. Распределение свежего угля по колосниковой решетке должно быть равномерным высотой не более 200 мм.

Образующиеся в топочной камере газы выходят через расположенную над топкой конвективную ступень теплообмена, и двигаясь вверх выводятся в систему дымоудаления.

Зола и шлак из зольника через дверку выгребаются и удаляются в отвал.

Дымовая труба обеспечивает естественную тягу. При недостаточной высоте трубы, либо при плюсовых температурах окружающей среды дополнительно устанавливается дымосос. По Вашему желанию дымовая труба может быть установлена на котел при изготовлении.

Регулирование мощности котла

Регулировка производительности и температуры производственного теплового котла 150 кВт на угле производится изменением количества забрасываемого топлива.

Комплект поставки

Цена на напольные котлы 0 15 МВт угольные включает базовую комплектацию. В состав базовой комплектации входит: котельный блок, топка, колосники, затворы, предохранительные клапаны, вентили, манометры, термометры, трехходовые краны.

Дополнительная комплектация

  • автоматика – обеспечивает управление и безопасность котла;
  • циркуляционный насос - обеспечивает циркуляцию воды в котлоагрегате;
  • подпиточный насос – позволяет пополнять объем теплоносителя в контуре;
  • дымовая труба – удаляет дымовые газы от котла за пределы помещения и рассеивает их в атмосфере. Подбирается по техзаданию.

Купить угольный котел 150 кВт

Для того чтобы купить водогрейный котел 150 кВт на угле российского производства в Ленгере, вы можете сделать заявку по телефону +7-7172-69-59-73, либо оформить заявку онлайн. Менеджеры дадут консультацию по подбору вспомогательного оборудования для выбранных вами моделей и рассчитают стоимость доставки. Транспортирование котлоагрегата и вспомогательного оборудования до объекта осуществляется автомобильным транспортом.

Комплект поставки

Шаровый кран
Кран шаровый
2 штуки
Клапан обратный
Клапан обратный
1 штука
Манометр МП 160
Манометр МП 160
2 штуки
Кран трехходовой ДУ 15
Кран Ду 15
2 штуки
Термометр ТТЖО
Термометр ТТЖО
2 штуки
Оправа термометра ОПТ
Оправа ОПТ
2 штуки
Вентиль Ду 15
Вентиль Ду 15
1 штука
Вентиль Ду 20
Вентиль Ду 20
1 штука

Дополнительно потребуется

Насос К консольный
К 50-32-125
Цена 283 656 тг.
Насос К консольный
К 50-32-125а
Цена 279 204 тг.
Насос TD
Насос TD32-33G2 (3 кВт)
Цена 788 640 тг.
Насос CHL
Насос CHL2-40 (0.55 кВт)
Цена 368 880 тг.
Дымовые трубы
Цена по запросу
Клапан термостатический смесительный для твердотопливных котлов
Клапан термостатический смесительный
Цена 82 680 тг.

Похожая продукция

Котел 150 кВт дрова уголь
Цена 2 308 680 тг.
Угольный котел 200 кВт
Цена 2 245 080 тг.
Угольный котел 300 кВт
Цена 2 785 680 тг.

Сертификаты товара

Сертификат на водогрейные котлы на твердом и жидком топливе
Сертификат на водогрейные котлы на твердом топливе

Собственное производство

Котельный завод производит
  • Паровые котлы от 300 кг до 2.5 тонны пара в час
  • Промышленные водогрейные котлы от 150 КВт до 4 МВт на всех видах топлива
  • Механические топки ТШПМ, шурующая планка и ТЛПХ, ленточное полотно прямого хода
  • Циклоны для очистки воздуха и дымовых газов для производств и промышленных отраслей
  • Транспортеры и системы топливоподачи и шлакоудаления
Подробнее о производстве
Собственное производство
Смотреть видео
с производства